Friday, May 18, 2007

The REVIT Factory

Check out the REVIT Factory web site !

You can buy and / or sell revit family content and tutorials.

Products, Forums, Competitions, Resources, Support .......

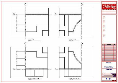
REVIT Dependent Views - Plan Application

Thanks to for posting this CADclip on their site.

All the REVIT 2008 products can take advantage of the new 'dependent view' tools.

Esentially, you can cut up a primary view into other smaller views while still keeping the connectivity. The smaller, dependant views are organized below the primary view n the Project Browser for convenient access.

The image above say's it all !

Below is a great CADclip link explaining how to use the new 'dependent view' in an elevational aspect.


(click the link above to play the CADclip or right click and "save target as..." to download)

REVIT Dependent Views - Elevation Application

Thanks to for posting this CADclip on their site.

All the REVIT 2008 products can take advantage of the new 'dependent view' tools.

Esentially, you can cut up a primary view into other smaller views while still keeping the connectivity. The smaller, dependant views are organized below the primary view n the Project Browser for convenient access.

The image above say's it all !

Below is a great CADclip link explaining how to use the new 'dependent view' in an elevational aspect.



(click the link above to play the CADclip or right click and "save target as..." to download)

More info here > for Dependent Views and hiding objects

Annotation Crop Region

Thanks to for posting this CADclip on their site.

Have you ever tried to crop a view and the dimensions (or some of them) don't get cropped ?

Well REVIT introduced the 'Annotation Crop' region to solve this problem. The reason is: The objects that the dimensions or annotations are related to are still within the 'model crop' region even though the actual dimensions are not.

If you turn on the 'Annotation Crop' region you will see a new 'Green' crop region that will solve the problem.

By default the primary views in revit do not have the 'annotation crop' region turned on but it is completely available.

Below is a great CADclip link explaining how to use the new 'annotation crop' region.


(click the link above to play the CADclip or right click and "save target as..." to download)